Calgary
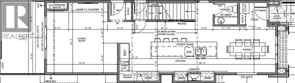
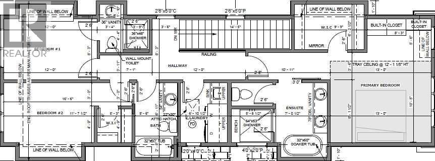
Situated on one of the area’s most charming, family-friendly streets, beautifully lined with mature oak trees, this location delivers the perfect blend of inner-city convenience and neighborhood warmth. Exceptional pre-sale opportunity in the highly sought-after community of Mount Pleasant! Offering over 2,800 sq ft of thoughtfully designed living space, this home features a fully legal basement suite with separate entrance and private laundry — perfect for rental income, mortgage assistance, or multi-generational living. The bright main floor features 11-ft ceilings, wide plank hardwood floors, and a designer kitchen with a dramatic 14-ft waterfall island, quartz countertops, white oak shaker cabinetry, plaster hood fan, premium appliances, and modern gold/black accents. The spacious living room showcases a custom brick gas fireplace and built-ins, while the mudroom offers functional storage.Upstairs offers 9-ft ceilings and a stunning primary retreat with HUGE vaulted ceilings, and a spa-inspired 5-piece ensuite with in-floor heat and steam shower rough-in. Two additional bedrooms with walk-in closets and a full laundry room complete the level.The legal basement suite includes a full kitchen, living area, 2 bedrooms, bath, and separate laundry. Additional features include dual furnaces with HRVs, A/C rough-in, ceiling speakers, security rough-in, and custom closets.Located steps to Confederation Park and minutes to SAIT, UofC, hospitals, LRT, and downtown.Call today for details! (id:58070)
| Bathroom Total | 4 | Bedrooms Above Ground | 3 |
| Bedrooms Below Ground | 2 | Bedrooms Total | 5 |
| Appliances | Refrigerator, Gas Stove(s), Dishwasher, Microwave, Hood Fan, See Remarks, Garage Door Opener, Washer & Dryer | Basement Development | Finished |
| Basement Features | Suite | Basement Type | Full (finished) |
| Constructed Date | 2026 | Construction Material | Wood Frame |
| Construction Style Attachment | Detached | Cooling Type | See Remarks |
| Exterior Finish | See Remarks | Fireplace Present | Yes |
| Fireplace Total | 1 | Flooring Type | Carpeted, Hardwood |
| Foundation Type | Poured Concrete | Half Bath Total | 1 |
| Heating Type | Forced Air | Stories Total | 2 |
| Size Interior | 1960 Sqft | Total Finished Area | 1960.25 Sqft |
| Type | House |
| Detached Garage | 2 |
| Acreage | No | Fence Type | Fence |
| Land Amenities | Park, Playground, Recreation Nearby, Schools, Shopping | Landscape Features | Lawn |
| Size Depth | 36.55 M | Size Frontage | 7.62 M |
| Size Irregular | 3000.00 | Size Total | 3000 Sqft|0-4,050 Sqft |
| Size Total Text | 3000 Sqft|0-4,050 Sqft | Zoning Description | Rc-g |
| Level | Type | Dimensions |
|---|---|---|
| Second Level | 5pc Bathroom | Measurements not available |
| Second Level | 4pc Bathroom | Measurements not available |
| Second Level | Primary Bedroom | 17.00 Ft x 13.00 Ft |
| Second Level | Bedroom | 16.50 Ft x 8.42 Ft |
| Second Level | Bedroom | 12.00 Ft x 8.25 Ft |
| Main Level | 2pc Bathroom | Measurements not available |
| Unknown | 4pc Bathroom | Measurements not available |
| Unknown | Bedroom | 17.00 Ft x 10.00 Ft |
| Unknown | Bedroom | 11.00 Ft x 8.00 Ft |