Request a Showing

    Description

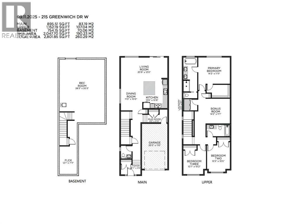
    For those who work hard and play harder, this brand-new paired home in Upper Greenwich is the perfect blend of style, comfort, and convenience.Step inside and feel the calm wash over you – tall ceilings and wide-plank luxury flooring create a light, airy vibe. The chef-inspired kitchen is a showstopper with warm wood grain on the island, soft white cabinetry, quartz countertops, and a backsplash fittingly named White Brick Road. Whether you’re grabbing a quick breakfast before heading out the door or hosting friends on a night off, this space is made for real life. Upstairs, your primary suite is a private escape after long shifts. Soak away the stress of the day in the freestanding tub, or refresh under the frameless glass walk-in shower with tile surround and adjustable-height faucet. Dual sinks, a private water closet, and elegant finishes give it a spa-like feel. Two more bedrooms and a bonus room mean there’s space for guests, a Peloton corner, or a quiet reading nook. Your commute? 20 minutes to downtown Calgary. Your weekend? 45 minutes to the mountains. Walk to the Calgary Farmers’ Market for fresh ingredients, hit the pickleball courts, or follow the nearby paths to the Bow River for a run, paddle, or just a moment of stillness. Winsport and the Calgary Climbing Centre are practically in your backyard, keeping your active lifestyle within easy reach. This isn’t just a house – it’s a home designed for your pace, your goals, and your well-earned downtime. (id:58070)

    Property Features

    • MLS® Number A2277964
    • Price $765,000
    • Bedrooms: 3
    • Bathrooms: 3
    • Square Footage: 2048 sqft
    • Property Type: Duplex
    • Community Name: Greenwood/Greenbriar
    • Amenities Near By Park, Playground, Recreation Nearby, Shopping
    • Community Features Fishing
    • Features Pvc Window, No Smoking Home, Gas Bbq Hookup
    • Parking Space Total 2
    • Plan 2410444
    • Structure None

    Buildings

    Bathroom Total 3 Bedrooms Above Ground 3
    Bedrooms Total 3 Appliances Washer, Refrigerator, Cooktop - Electric, Dishwasher, Dryer, Microwave, Oven - Built-in, Hood Fan, Garage Door Opener
    Basement Development Unfinished Basement Type Full (unfinished)
    Constructed Date 2024 Construction Material Wood Frame
    Construction Style Attachment Semi-detached Cooling Type See Remarks
    Exterior Finish Brick, Composite Siding Flooring Type Carpeted, Ceramic Tile, Vinyl Plank
    Foundation Type Poured Concrete Half Bath Total 1
    Heating Type Forced Air Stories Total 2
    Size Interior 2048 Sqft Total Finished Area 2047.7 Sqft
    Type Duplex

    Parking

    Concrete
    Attached Garage 1

    Land

    Acreage No Fence Type Partially Fenced
    Land Amenities Park, Playground, Recreation Nearby, Shopping Size Frontage 7.75 M
    Size Irregular 287.00 Size Total 287 M2|0-4,050 Sqft
    Size Total Text 287 M2|0-4,050 Sqft Zoning Description Dc

    Rooms

    Level Type Dimensions
    Second Level Bonus Room 14.17 Ft x 11.08 Ft
    Second Level Primary Bedroom 14.25 Ft x 11.92 Ft
    Second Level Bedroom 13.25 Ft x 10.42 Ft
    Second Level Bedroom 10.58 Ft x 10.17 Ft
    Second Level 4pc Bathroom Measurements not available
    Second Level 5pc Bathroom Measurements not available
    Second Level Laundry Room 5.92 Ft x 5.08 Ft
    Basement Other 12.92 Ft x 7.92 Ft
    Lower Level Recreational, Games Room 28.25 Ft x 20.25 Ft
    Main Level Kitchen 13.50 Ft x 10.75 Ft
    Main Level Dining Room 11.75 Ft x 10.83 Ft
    Main Level Living Room 20.75 Ft x 12.00 Ft
    Main Level Foyer 8.92 Ft x 4.50 Ft
    Main Level 2pc Bathroom Measurements not available
    Address
    Scroll to Top