Chestermere
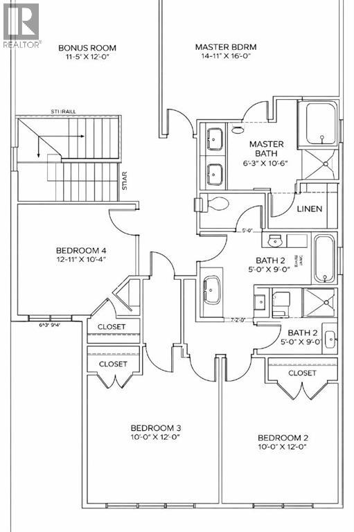
Welcome to the brand new community of Waterford! This amazing Semi-Detached Front-Drive Garage Duplex is great at a fantastic price point! The main level features a front porch entrance, a Full bathroom with a shower and a Bedroom on the main floor with a closet, chic kitchen with a walk-through pantry, a family room and cozy nook. The Upper floor features a nice size primary bedroom with a walk-in closet and 4-piece ensuite including double vanity, a Bonus room and laundry plus 3 additional bedrooms! The basement is ready for your development and has a Separate entrance! Possession will be June 2026. Call to book your private showing today! (id:58070)
| Bathroom Total | 3 | Bedrooms Above Ground | 5 |
| Bedrooms Total | 5 | Appliances | Refrigerator, Range - Electric, Dishwasher, Microwave Range Hood Combo |
| Basement Development | Unfinished | Basement Features | Separate Entrance |
| Basement Type | Full (unfinished) | Constructed Date | 2026 |
| Construction Material | Wood Frame | Construction Style Attachment | Semi-detached |
| Cooling Type | None | Fireplace Present | Yes |
| Fireplace Total | 1 | Flooring Type | Carpeted, Tile |
| Foundation Type | Poured Concrete | Heating Type | Forced Air |
| Stories Total | 2 | Size Interior | 2090 Sqft |
| Total Finished Area | 2090 Sqft | Type | Duplex |
| Attached Garage | 2 |
| Acreage | No | Fence Type | Not Fenced |
| Land Amenities | Shopping | Size Depth | 39.64 M |
| Size Frontage | 10.06 M | Size Irregular | 311.86 |
| Size Total | 311.86 M2|0-4,050 Sqft | Size Total Text | 311.86 M2|0-4,050 Sqft |
| Zoning Description | R-3 |
| Level | Type | Dimensions |
|---|---|---|
| Second Level | Primary Bedroom | 14.92 Ft x 10.00 Ft |
| Second Level | Bedroom | 12.58 Ft x 9.00 Ft |
| Second Level | Bedroom | 12.00 Ft x 9.00 Ft |
| Second Level | Bedroom | 10.67 Ft x 10.00 Ft |
| Second Level | 4pc Bathroom | 8.75 Ft x 5.00 Ft |
| Second Level | 4pc Bathroom | 11.08 Ft x 8.33 Ft |
| Main Level | 3pc Bathroom | 8.08 Ft x 5.00 Ft |
| Main Level | Bedroom | 11.08 Ft x 9.67 Ft |