Request a Showing

    Description

    *OPEN HOUSE SAT/ SUN JAN. 17, 18th 2-4 pm* Timeless design, modern comfort, and everyday function come together on a quiet tree-lined street in this stunning new home in GLENBROOK. With expansive windows, warm natural materials, and elevated finishes throughout, it’s crafted for family living in one of Calgary’s most established neighbourhoods. Step in from the covered entry to a bright foyer with sight lines across the open main floor, where light oak hardwood carries seamlessly through the principal rooms. The front dining room is anchored by a custom feature wall, setting the tone for the thoughtful millwork found throughout. An elevated powder room greets you upon entering & provides privacy & convenience through a hidden door. At the heart of the home, the chef-inspired kitchen blends beauty with purpose—two full pantries, crisp white uppers over matching oak lowers, a striking waterfall quartz island, exposed beams and professional KitchenAid appliances including a flat gas cooktop, built-in wall oven, and French-door fridge. Clean lines, elegant lighting, and generous prep space make this a true culinary hub. A well-designed butlers pantry & mudroom with custom built-ins keeps everyday essentials organized, The floor plan flows naturally into the inviting living room, where custom coffered ceilings & built-ins frame a cozy gas fireplace & create the perfect space to unwind or gather with friends & family. Large windows and an 8’ sliding patio door pull in west light and open directly to the backyard for easy indoor/outdoor living. Step outside to a sun-soaked west-facing backyard, complete with a large rear deck and BBQ gas line, ready for late summer evenings & weekend gatherings. A double garage plus a striking exterior finished in stucco & Hardie-board siding complete this exceptional property. Head up the alluring hardwood stairs to find more of the same hardwood floors & a thoughtfully placed built-in desk that creates the perfect homework zone or de dicated home office. A spacious laundry room with quartz countertop, pre-wash sink, plus extra storage ensures the second floor is as practical as it is comfortable.Retreat to the serene primary suite, where vaulted ceilings lift the space and morning sun pours through oversized windows. The ensuite reads like a private spa, offering a massive walk-in shower with body jets, (roughed in steam shower), double sinks, a deep free-standing soaker tub, & beautifully curated tile throughout. A custom walk-in closet completes the sanctuary. Two additional bedrooms sit down the hall. One even features its own custom built in closet.The lower level flexes effortlessly with family life—an expansive Rec room with custom built-in TV wall, a generous flex/rec area with a full wet bar, plus an additional bedroom and full bath, ideal for guests, teens, or extended family. Located close to schools, parks, playgrounds, shopping, transit, & major routes—offering a perfect blend of community charm & everyday convenience. (id:58070)

    Property Features

    • MLS® Number A2270058
    • Price $1,024,900
    • Bedrooms: 4
    • Bathrooms: 4
    • Square Footage: 1905 sqft
    • Property Type: Duplex
    • Community Name: Glenbrook
    • Amenities Near By Park, Playground, Recreation Nearby, Schools, Shopping
    • Features Treed, See Remarks, Back Lane, Wet Bar, Pvc Window, Closet Organizers, No Animal Home, Gas Bbq Hookup
    • Parking Space Total 4
    • Plan 2511040
    • Structure Deck

    Buildings

    Bathroom Total 4 Bedrooms Above Ground 3
    Bedrooms Below Ground 1 Bedrooms Total 4
    Appliances Refrigerator, Dishwasher, Microwave, Oven - Built-in, Hood Fan Basement Development Finished
    Basement Type Full (finished) Constructed Date 2025
    Construction Style Attachment Semi-detached Cooling Type None, See Remarks
    Exterior Finish Stucco Fireplace Present Yes
    Fireplace Total 1 Flooring Type Carpeted, Hardwood, Tile
    Foundation Type Poured Concrete Half Bath Total 1
    Heating Fuel Natural Gas Heating Type Other, Forced Air, In Floor Heating
    Stories Total 2 Size Interior 1905 Sqft
    Total Finished Area 1904.61 Sqft Type Duplex

    Parking

    Detached Garage 2
    See Remarks

    Land

    Acreage No Fence Type Fence
    Land Amenities Park, Playground, Recreation Nearby, Schools, Shopping Landscape Features Lawn
    Size Depth 35.03 M Size Frontage 7.62 M
    Size Irregular 2871.31 Size Total 2871.31 Sqft|0-4,050 Sqft
    Size Total Text 2871.31 Sqft|0-4,050 Sqft Zoning Description R-cg

    Rooms

    Level Type Dimensions
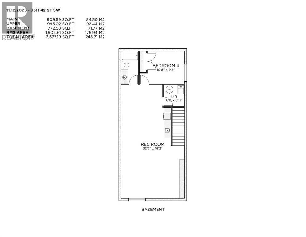
    Basement Recreational, Games Room 23.58 Ft x 18.00 Ft
    Basement Other 8.67 Ft x 2.17 Ft
    Basement Bedroom 10.67 Ft x 9.42 Ft
    Basement 4pc Bathroom 9.42 Ft x 4.92 Ft
    Basement Furnace 6.08 Ft x 5.92 Ft
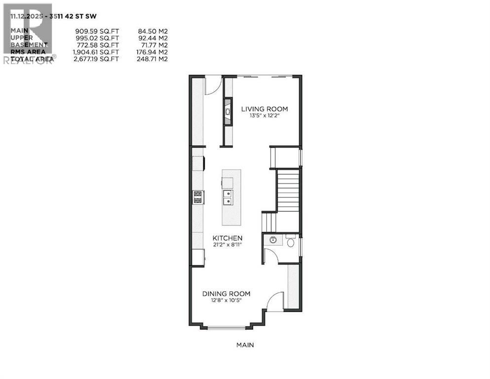
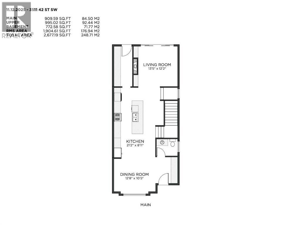
    Main Level Kitchen 21.17 Ft x 8.92 Ft
    Main Level Other 12.67 Ft x 10.42 Ft
    Main Level Living Room 13.42 Ft x 12.17 Ft
    Main Level 2pc Bathroom 6.25 Ft x 5.08 Ft
    Main Level Other 12.17 Ft x 5.42 Ft
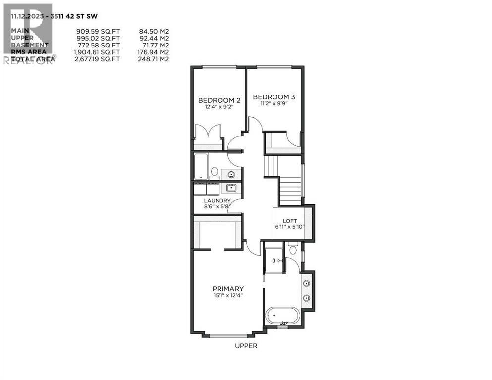
    Upper Level Loft 6.92 Ft x 5.83 Ft
    Upper Level Primary Bedroom 15.08 Ft x 12.33 Ft
    Upper Level Bedroom 12.33 Ft x 9.17 Ft
    Upper Level Bedroom 11.17 Ft x 9.75 Ft
    Upper Level 4pc Bathroom 8.50 Ft x 4.92 Ft
    Upper Level 5pc Bathroom 14.92 Ft x 8.50 Ft
    Upper Level Laundry Room 8.50 Ft x 5.67 Ft
    Address
    Scroll to Top