Request a Showing

    Description

    Welcome to HARMONY HAVEN — A stunning modern farmhouse that embodies the essence of contemporary living while embracing the warmth of rustic charm. Designed by PHASE ONE DESIGN and expertly built by DOMINIUM RESIDENTIAL, this home is perfectly situated in the desirable community of Currie, just 7 minutes from Downtown Calgary. With 3,256 square feet above grade and over 4,300 square feet of developed living area, HARMONY HAVEN offers ample space for both relaxation and entertaining. As you approach, the sleek, modern façade draws you in, promising the elegance that awaits within.The heart of this home is the exquisite kitchen, featuring a striking waterfall island, a through sink, and top-of-the-line Fisher & Paykel built-in panel-covered fridge and freezer. Cooking enthusiasts will appreciate the natural gas stove with pot filler, convection oven, and speed oven/microwave, all complemented by stylish three-tone custom cabinetry illuminated by under-cabinet lighting.The spacious living room is designed for comfort, showcasing built-in shelving, a cozy fireplace, and a stunning lighting fixture that adds a touch of sophistication. This inviting space offers beautiful views of the picturesque streetscape, creating a serene atmosphere.Safety is prioritized with stairway lighting, guiding you throughout the home. The double car garage is fully finished with paint and epoxy flooring, featuring a charging point for your electric vehicle—perfect for the eco-conscious homeowner.HARMONY HAVEN is equipped with advanced technology, including rough ins for voice commands, wiring for cameras, four two-speaker zones, indoor ceiling speakers with woofers, outdoor speakers for the deck, and myQ garage door openers for remote access. The fully landscaped yard is enclosed with premium vinyl fencing, providing both privacy and style.Retreat to the elegant ensuite, where you'll find heated floors, a spacious double vanity with custom mirrors, and a luxurious freestanding t ub. The second floor includes the luxurious primary bedroom and two large secondary bedrooms and bathroom plus a laundry room, storage close all perfect for family or guests.The loft floor consists of a bonus room, a large home office and an additional bedroom/flex room with a full bathroomThe breathtaking lower level is an entertainer's dream, featuring custom built-ins, a grand wet bar, and generous natural light. This versatile space also includes a large flex room and an additional bedroom.Located in one of Calgary’s premier inner-city communities, HARMONY HAVEN offers easy access to parks, dog parks, walking and biking trails, and over 12 schools catering to all age groups. This exceptional home seamlessly blends elegant design with modern conveniences, making it a must-see for any discerning buyer. Don’t miss your opportunity to claim this luxurious residence as your own! (id:58070)

    Property Features

    • MLS® Number A2276736
    • Price $1,900,000
    • Bedrooms: 6
    • Bathrooms: 5
    • Square Footage: 3256 sqft
    • Property Type: House
    • Community Name: Currie Barracks
    • Amenities Near By Park, Playground, Schools, Shopping
    • Features Other, Wet Bar, Closet Organizers, Level, Gas Bbq Hookup
    • Parking Space Total 2
    • Plan 2011437
    • Structure Deck
    January
    24
    Saturday

    This property has open houses!

    Starts at:

    12:00 pm

    Ends at:

    5:00 pm

    Builder show home is next door. at 336 Normandy Drive. Please request access from there

    Open House

    January
    25
    Sunday

    This property has open houses!

    Starts at:

    12:00 pm

    Ends at:

    5:00 pm

    Builder show home is next door. at 336 Normandy Drive. Please request access from there

    Open House

    Buildings

    Bathroom Total 5 Bedrooms Above Ground 4
    Bedrooms Below Ground 2 Bedrooms Total 6
    Appliances Refrigerator, Cooktop - Gas, Dishwasher, Microwave, Freezer, Oven - Built-in, Washer & Dryer Basement Development Finished
    Basement Type Full (finished) Constructed Date 2025
    Construction Material Poured Concrete, Wood Frame Construction Style Attachment Detached
    Cooling Type Central Air Conditioning Exterior Finish Brick, Concrete
    Fireplace Present Yes Fireplace Total 2
    Flooring Type Carpeted, Hardwood, Other, Tile Foundation Type Poured Concrete
    Half Bath Total 1 Heating Fuel Electric, Natural Gas
    Heating Type Central Heating, Other Stories Total 3
    Size Interior 3256 Sqft Total Finished Area 3255.9 Sqft
    Type House

    Parking

    Detached Garage 2

    Land

    Acreage No Fence Type Fence
    Land Amenities Park, Playground, Schools, Shopping Landscape Features Landscaped
    Size Depth 32.59 M Size Frontage 13.2 M
    Size Irregular 385.00 Size Total 385 M2|4,051 - 7,250 Sqft
    Size Total Text 385 M2|4,051 - 7,250 Sqft Zoning Description Dc

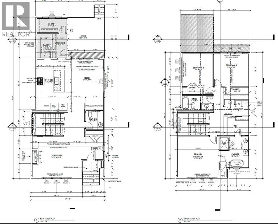
    Rooms

    Level Type Dimensions
    Second Level Bedroom 11.33 Ft x 12.00 Ft
    Second Level Bedroom 12.92 Ft x 12.00 Ft
    Second Level 4pc Bathroom 11.33 Ft x 5.00 Ft
    Second Level Primary Bedroom 15.00 Ft x 14.83 Ft
    Second Level 5pc Bathroom 10.92 Ft x 11.33 Ft
    Second Level Other 9.08 Ft x 7.00 Ft
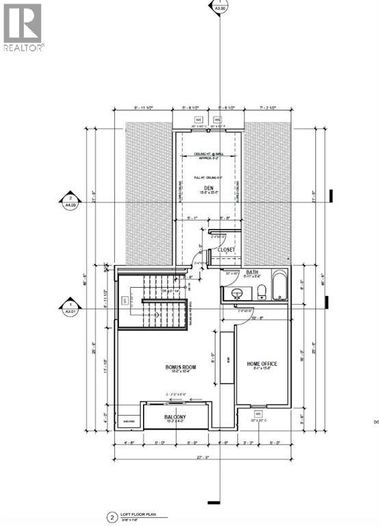
    Third Level Bedroom 10.00 Ft x 20.42 Ft
    Third Level 4pc Bathroom 8.08 Ft x 15.50 Ft
    Third Level Office 8.08 Ft x 15.50 Ft
    Third Level Bonus Room 18.00 Ft x 10.33 Ft
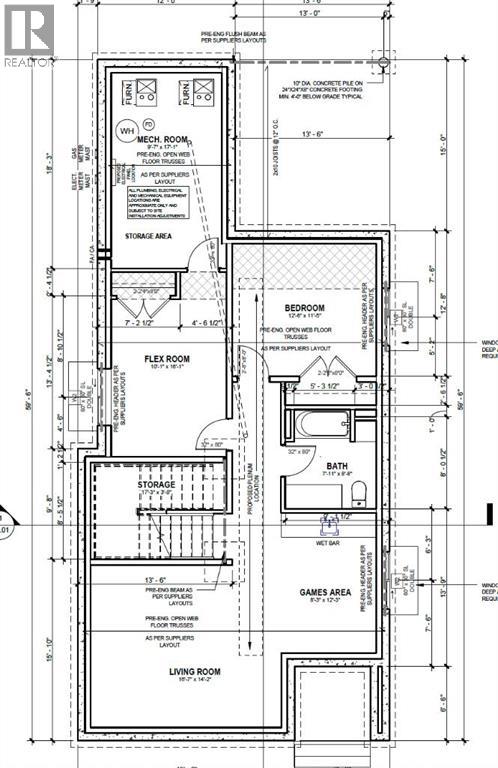
    Basement 4pc Bathroom 7.92 Ft x 8.67 Ft
    Basement Living Room 16.58 Ft x 14.17 Ft
    Basement Bedroom 12.50 Ft x 11.42 Ft
    Basement Bedroom 10.08 Ft x 16.08 Ft
    Basement Recreational, Games Room 8.25 Ft x 12.25 Ft
    Basement Storage 17.25 Ft x 3.67 Ft
    Main Level Kitchen 11.50 Ft x 17.75 Ft
    Main Level Other 5.00 Ft x 8.92 Ft
    Main Level Dining Room 12.92 Ft x 16.33 Ft
    Main Level Living Room 17.92 Ft x 14.83 Ft
    Main Level 2pc Bathroom 6.42 Ft x 7.08 Ft
    Main Level Foyer 8.25 Ft x 8.33 Ft
    Main Level Storage 10.92 Ft x 5.17 Ft
    Main Level Pantry 5.50 Ft x 8.92 Ft
    Address
    Scroll to Top